產品概述:
ZZC和ZZV自力式差(微)壓調節閥是一種不需要外加能源的執行器產品。可用于公稱壓力PN0.1,PN1.0。差(微)壓均可分段調節。從
50mm.W.C至0.1MPa。其用途十分廣泛,可用于工業燃燒爐系統,控制兩種物料,如煤氣、空氣流量配比,以達理想燃燒。用于氫冷發電機組密封油系
統,控制密封油與氫氣間壓力差,以確保可靠密封。當差壓閥的低壓端通大氣即為微壓閥(差壓閥負壓,端壓,力為零)。
產品特點:
1、無需停止生產即可進行設定值的調整;
2、無填料,閥桿上、下活動時不存在磨擦,上密封絕對可靠;
3、執行機構敏感元件極為靈敏,極微小的壓力變化會被感測出來;
4、閥體為四通形式,因而K、B型可通用一種閥體。
技術參數:◆主要技術參數和性能指標
公稱通徑 DN(mm) | 20 | 25 | 32 | 40 | 50 | 65 | 80 | 100 | |
額定流量 系數 Kv | ZZCP/ZZVP | 8 | 11 | 20 | 32 | 50 | 80 | 100 | 160 |
ZZCN | 53 | 83 | |||||||
額定行程 (mm) | 6 | 8 | 10 | 15 | 20 | ||||
公稱壓力 PN(MPa) | 0.10 1.0 | ||||||||
差壓調節范圍 (kPa) | 0.5 ~ 5.5 5 ~ 10 9 ~ 14 13 ~ 19 18 ~ 24 22 ~ 28 26 ~ 33 31 ~ 38 36 ~ 44 42 ~ 51 49 ~ 58 56 ~ 66 64 ~ 78 76 ~ 90 8 ~ 100 | ||||||||
介質溫度 ( ℃ ) | ≤ 80 | ||||||||
調節精度 ( % ) | ≤ 10 | ||||||||
允許泄漏 量 (l/h) | ZZCP/ZZVP | 10-4 X 閥額定容量 ( Ⅳ 級 ) | |||||||
ZZCN | 5X10-3 X 閥額定容量 ( II 級 ) | ||||||||
注:
1、ZZCP/ZZVP公稱壓力為0.10MPa,ZZCN為1.0MPa
2、ZZCN差壓調節范圍為36~44…88~100kPa
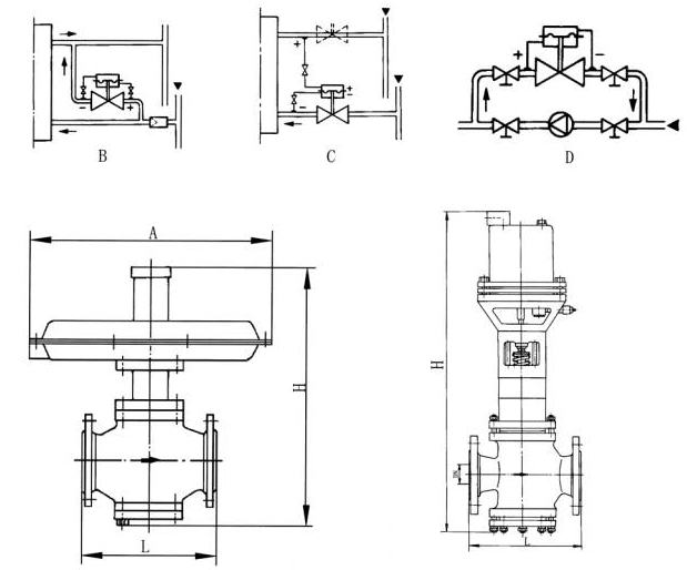
規格重量:
◆外形尺寸及重量 單位:mm
DN | 20 | 25 | 32 | 40 | 50 | 65 | 80 | 100 | |
A | 308 | 394 | 308 | 394 | 308 | 394 | 394 | 394 | |
H | ZZCP/ZZVP | 376 | 465 | 365 | 445 | 445 | 490 | 490 | 510 |
ZZCN | 536 | 536 | |||||||
L | ZZCP/ZZVP | 150 | 160 | 180 | 200 | 230 | 290 | 310 | 350 |
ZZCN | 222 | 222 | |||||||
重量 G(Kg) | 12 | 13 | 15 | 17 | 20 | 28 | 38 | 43 | |
導壓管螺紋接頭 | M16X1.5 | ||||||||